Section properties
`S = I/y`
`M_y = S * sigma_y`
`I_G = (bh^3)/12`
`I_0 = (bh^3 + hb^3)/12`
`S = (bh^2)/6`
Quadratic Moment IG (m4) :
Polar Moment I0 (m4) :
Section Modulus S (m3) :
`I_G = (pi d^4)/64`
`I_0 = (pi d^4)/32`
`S = (pi d^3)/32`
Quadratic Moment IG (m4) :
Polar Moment I0 (m4) :
Section Modulus S (m3) :
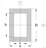
`I_G = (BH^3 - bh^3)/12`
`I_0 = ((BH^3 - bh^3) + (HB^3 - hb^3))/12`
`S = (BH^3 - bh^3)/(6H)`
Quadratic Moment IG (m4) :
Polar Moment I0 (m4) :
Section Modulus S (m3) :
`I_G = (pi(d^4 - (d-t)^4))/64`
`I_0 = (pi(d^4 - (d-t)^4))/32`
`S = (pi(d^4 - (d-t)^4))/(32d)`
Quadratic Moment IG (m4) :
Polar Moment I0 (m4) :
Section Modulus (m3) :
Principal stresses at a point with two measures of strain μ, Young's modulus E and Poisson's ratio ν
`sigma_1 = E/(1-nu^2)*(epsilon_1 + nu epsilon_2)`
`sigma_2 = E/(1-nu^2)*(epsilon_2 + nu epsilon_1)`
Enter variables :
Maximum stress (MPa) :
Minimum stress (MPa) :